Thorpe Road, Upper Wardington, Banbury, Oxfordshire, OX17 1SR
- Detached Bungalow
- 4
- 4
- 2
Description:
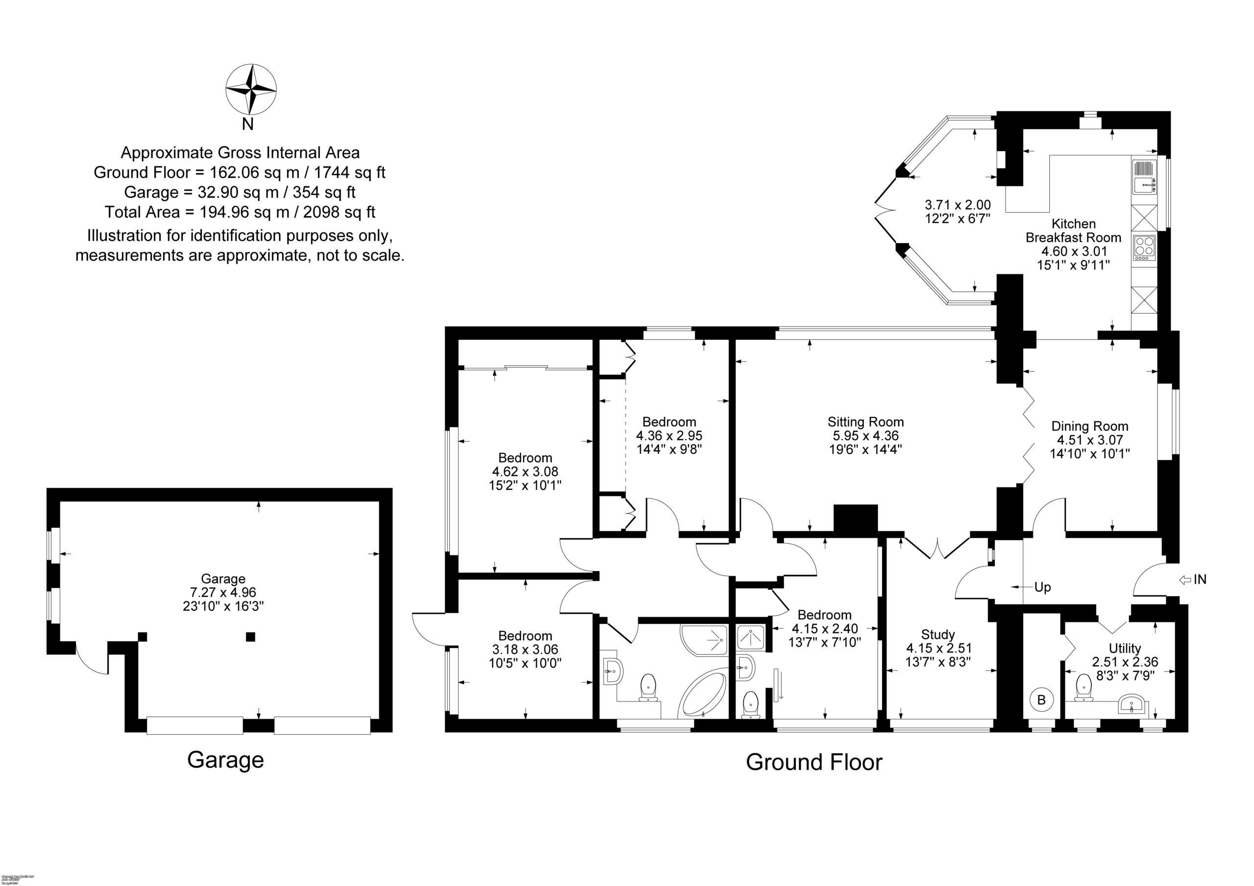
A deceptively spacious and extended four/five bedroom detached Bungalow set in generous gardens with driveway and parking for numerous vehicles and a double garage.
Entrance Hall: Tiled floor
Cloakroom/Utility Room: Comprising of a white suite, low level W.C, hand wash basin with cupboard underneath, plumbing for washing machine and tumble dryer. Two double glazed windows to side aspect, tiled floor, walk-in cupboard with shelving and a floor mounted oil central heating boiler.
Sitting Room: Attractive gas fire, large double glazed window to side aspect, folding doors to
Dining Room: Wooden floor, double glazed window to front aspect, exposed beam ceiling, glass panelled double doors to
Kitchen/Breakfast Room: Fitted with a range of mounted wall and base units with granite worksurfaces and granite splashbacks. Built-in electric hob with extractor hood above, built-in double oven, integrated dishwasher, tiled floor, double glazed window to front aspect.
Adjoining Breakfast Area: Tiled floor in a part-brick conservatory with double doors leading to the rear garden.
Study: Double glazed window to side aspect.
Inner Hall: Access to loft space, wooden floor.
Bedroom: Double glazed window to side aspect, built-in cupboard.
En-Suite Shower Room: Comprising of a white suite, shower cubicle, hand wash basin with cupboard below, low level W.C, part tiled walls.
Bedroom: Double glazed window to side aspect, range of built-in wardrobes.
Bedroom: Double glazed window to rear aspect, range of built-in wardrobes, wooden floor.
Bedroom: Double glazed window and door to rear garden, wooden floor.
Family Bathroom: Comprising of a white suite, corner bath, large double shower cubicle, low level W.C, hand wash basin with cupboard below, part tiled walls, tiled floor, double glazed window to side aspect.
Outside
The property features a large paved patio with steps leading up to a lawn area, complemented by well-stocked flower and shrub beds. To the rear of the garden is a gravelled parking area for numerous vehicles, along with a double garage with twin up-and-over doors, with light and power connected.
The property benefits from oil central heating and double glazed windows.
End of chain sale.

















