Cleveley Road, Enstone, Chipping Norton
£2,500 pcm - Let Agreed
- Detached House
- 3
- 2
Description:
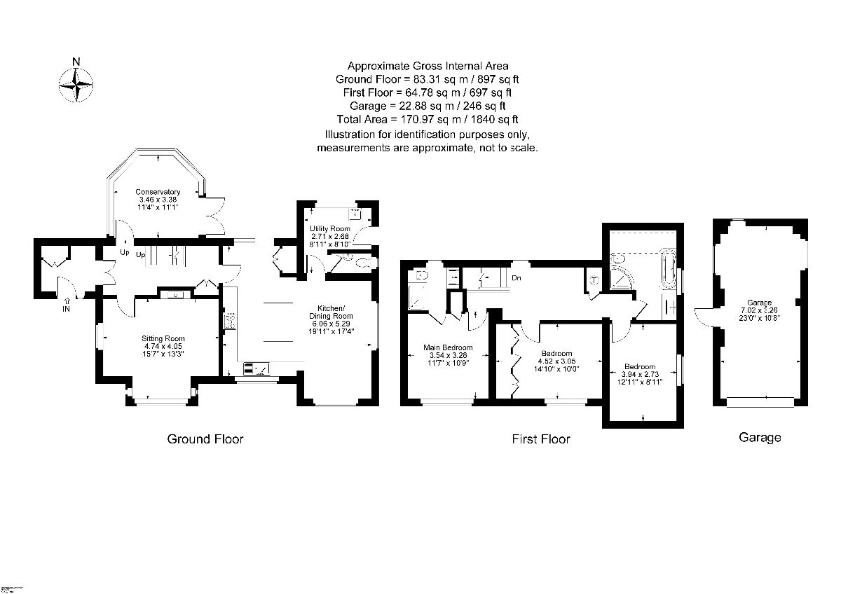
A detached three bedroom property with detached garage and parking for several vehicles.
A detached three bedroom property with detached garage and parking for several vehicles.
Council Tax Band: F (West Oxfordshire District Council)
Deposit: £2,880
Holding Deposit: £576
Parking options: Driveway, Garage
Utilities and risks
Utility Support
Electricity: Ask agent
Water: Ask agent
Heating: Ask agent
Broadband: Ask agent
Sewerage: Ask agent
Risks
Flooded in last five years: Ask agent
Flood source: Ask agent
Flood defences: Ask agent




















