Richmond Street, Kings Sutton, Oxfordshire, OX17 3RS
- Cottage
- 3
- 2
- 1
Description:
Totally transformed by the present owner, this beautifully presented three bedroom double fronted stone character cottage offers light and spacious accommodation with a sunny garden and parking for several vehicles.
Hardwood front door to
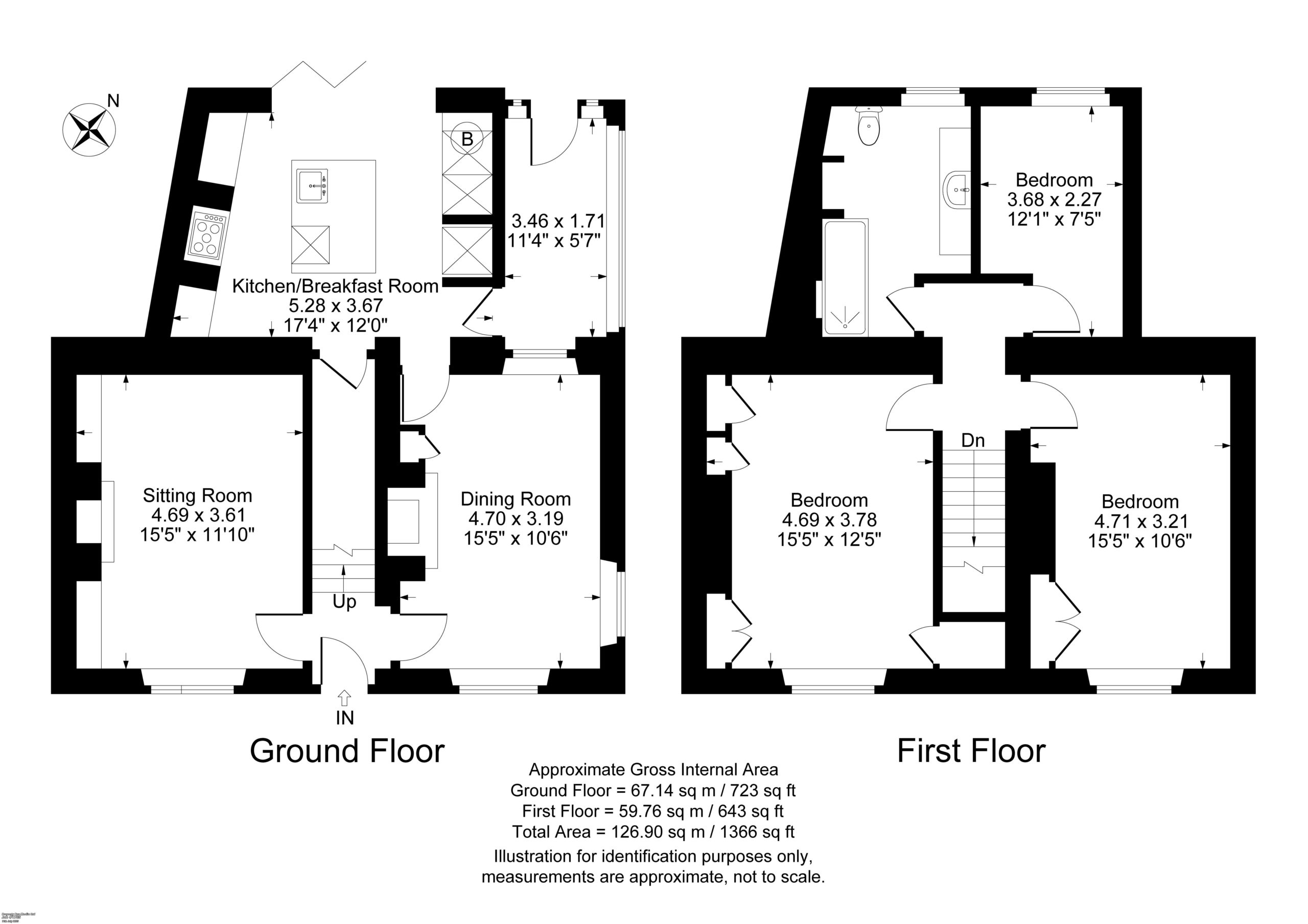
Entrance Hall: Tiled floor, stairs to first floor level.
Sitting Room: Attractive log burning fire with slate hearth. Two built-in cupboards either side of the fireplace, double glazed window to front aspect.
Dining Room: Attractive log burning fire with brick hearth and surround and oak mantel piece, wooden floor. Double glazed windows to front and side aspect. Built-in cupboard, door to Kitchen.
Fitted Kitchen/Breakfast Room: Beautifully fitted Howdens Kitchen with a range of base units with quartz worksurfaces. Central island with twin butler sink. Plumbing for dishwasher, range of cupboards and drawers. Space for a range cooker and extractor hood above. Built-in cupboard housing gas central heating boiler. Wooden floor, bi-fold doors to rear garden, door to walk-in pantry cupboard and door to Garden Room.
Garden Room: Of timber and glazed construction with travertine flooring, ideal for coats, boots, and bringing the dog back from a walk in the fields nearby.
First Floor Landing
Bedroom One: Double glazed window to front aspect, range of built-in single and double cupboards, access to insulated and bordered loft space.
Bedroom Two: Double glazed window to front aspect, built-in double cupboard, access to insulated and boarded loft space.
Bedroom Three: Double Glazed Window to Rear Aspect with views of fields in the distance, wooden floor.
Shower Room: Comprising of white suite of walk-in double shower cubicle with rain shower over. Attractive three drawer and three cupboard unit with white hand wash basin on top. Low level WC, double glazed window to rear aspect, wooden floor, heated towel rail.
Outside
Driveway providing off street parking and side access to
Rear Garden: This beautiful garden is not overlooked and easy to maintain with paved patio, gravel, stepping stones and shrub borders enclosed by an attractive stone wall. The timber garden shed has power, and there is also outside lighting and tap.

