Hobart Way, Deddington, Oxfordshire, OX15 0AH
- Detached House
- 3
- 2
- 2
Description:
An outstanding detached stone residence set in an elevated position with fine views to the front over rolling panoramic countryside.
Pitched oak canopy porch to hardwood front door, leading to:
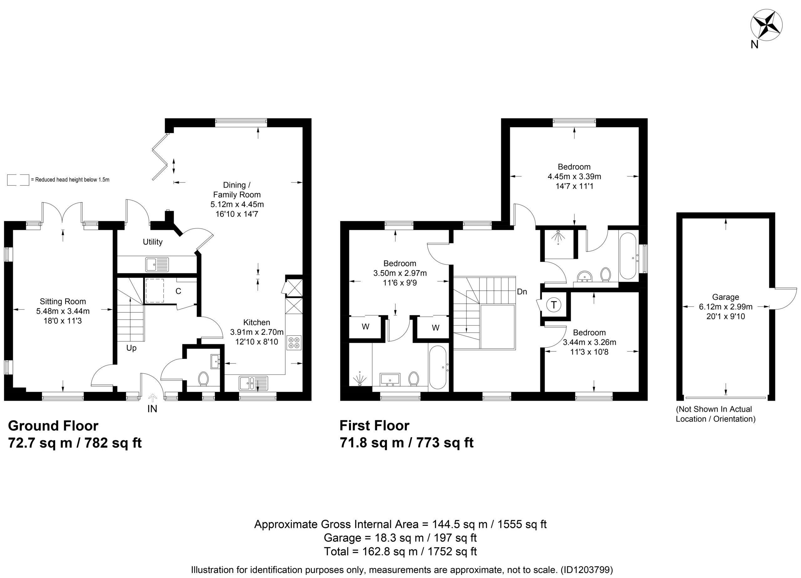
Entrance Hall: Stairs to first-floor level with understairs cupboard, tiled floor with underfloor heating.
Cloakroom: Comprising of white suite of low level WC, hand wash basin with vanity unit below, part tiled walls, tiled floor with underfloor heating, double glazed window to front aspect.
Sitting Room: Double-glazed windows to front aspect with views over rolling countryside. Double-glazed French doors to rear garden with windows either side. Two double-glazed windows to side aspect. Underfloor heating.
Kitchen/Dining/Family Room: Fitted with a range of mounted wall and base units with marble work surfaces. Range of integrated appliances including electric induction hob with extractor hood above, double oven, fridge freezer, and dishwasher. Double-glazed window to front aspect with views over rolling countryside. Double-glazed bi-fold doors to rear garden, double-glazed window to rear aspect, tiled floor with underfloor heating. Door to:
Utility Room: Single-base sink unit with cupboard underneath, range of base units, plumbing for washing machine and tumble dryer. Tiled floor with underfloor heating, half-glazed door to rear garden.
First Floor
Spacious Landing: Double-glazed window to front aspect with views over rolling countryside.
Double-glazed window to rear aspect, access to loft space, built-in airing cupboard.
Master Bedroom: Double-glazed window to rear aspect, range of mirrored built-in wardrobes with sliding doors.
En-Suite Bathroom: Comprising white suite of panelled bath with shower attachment, separate walk-in double shower cubicle with shower and rain shower, hand wash basin with vanity unit below, low-level WC, part-tiled walls, tiled floor, double-glazed window to front aspect.
Guest Bedroom: Double-glazed window to rear aspect.
En-Suite Bathroom: Comprising white suite of panelled bath with shower attachment, separate walk-in double shower cubicle with shower and rain shower, hand wash basin with vanity unit below, low-level WC, part-tiled walls, tiled floor, door to landing.
Bedroom Three: Double-glazed window to front aspect with views over rolling countryside.
Outside
The property is accessed off a private road serving three properties. This leads to its own driveway with parking for several vehicles, and there is an electric car charging point.
Stone-built Garage: Up-and-over door, part-glazed door to rear garden.
Front Garden: Laid with flower and shrub beds, side access via driveway to:
Rear Garden: Fully enclosed and laid with paved patio and mainly to lawn. There is a large area behind the garage which could accommodate a home office or gym. Outside light, tap, and electrics.
The property benefits from gas central heating and double-glazed windows.










