High Street, Upper Tadmarton, Oxfordshire, OX15 5SJ
Guide Price £600,000 - Sold STC
- Detached House
- 3
- 2
- 1
Key Features:
- Outbuilding
Description:
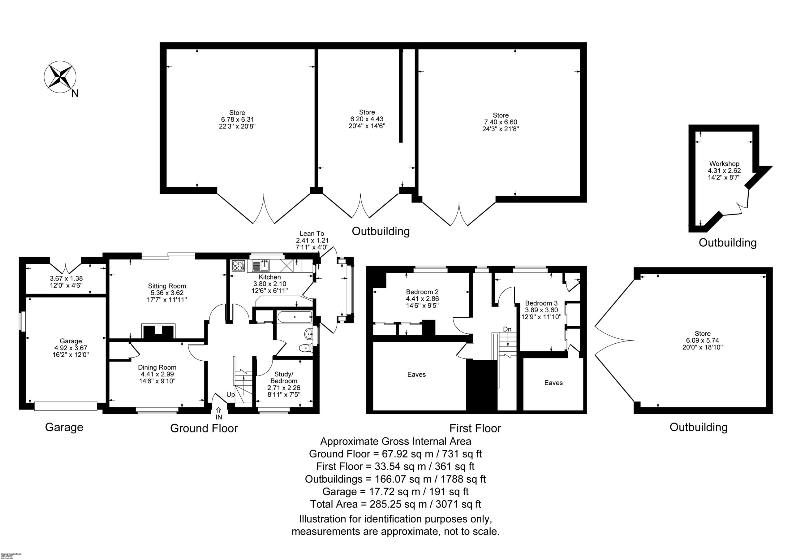
A rare opportunity to acquire a home with exceptional potential, set within land and accompanied by useful outbuildings. The main residence is a detached two/three-bedroom property surrounded by over half an acre of land.
The property also benefits from two substantial outbuildings, with the smaller located at the front of the plot and the larger positioned to the rear.
Situated in the highly sought-after village of Tadmarton, this property offers excellent scope for further development or enhancement, subject to the necessary permissions.
Utilities and risks
Utility Support
Electricity: Mains Supply
Water: Mains Supply
Heating: Oil Heating
Broadband: Ask agent
Sewerage: Mains Supply
Risks
Flooded in last five years: Ask agent
Flood source: Ask agent
Flood defences: Ask agent

























