Hempton Road, Deddington, Banbury, Oxfordshire, OX15 0QH
- Detached House
- 4
- 2
- 3
Description:
*RESERVED* A Glorious Newly Built Four Bedroom Detached Stone Residence in a Fabulous Village Position.
Introducing Burrington Estates' exclusive development of high quality homes arriving in Deddington, North Oxfordshire in 2022.
We’ve proudly built a reputation for creating imaginative, luxury residential apartments, homes and projects.
With countless years of combined experience in the property industry, we have an enviable portfolio. It encompasses medium to large scale distinctive developments, high-quality mixed-use schemes, luxury individual homes, imaginative waterfront properties, sensitively refurbished historic buildings and inspiring renovation projects.
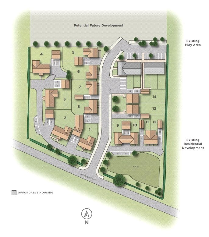
Hempton Road, Deddington
Just a select development of 21 homes, with 2, 3 and 4 bed properties.
Homes of Distinction
Deddington is a charming market town, a stones throw away from the Cotswolds, and is ideally located for access into Oxford, Banbury, Bicester, Woodstock and Chipping Norton. This picture postcard location boasts excellent facilities including a delicatessen, two public houses, village shops and an excellent primary school. Characterised by beautiful stone cottages and period homes, the village offers an unrivalled sense of community with numerous clubs and societies and a monthly farmers market, regularly featured as one of the UK’s top 10. There are excellent transfer links, including rail into London. The renowned Soho Farmhouse is approximately 10 minutes away, and World-Famous Bicester Shopping Village also within easy reach. Deddington is a quintessential Oxfordshire Town with a strong sense of identity and an air of peace and tranquillity, the perfect place for growing families or retired couples alike.
TELEPHONE US NOW TO REGISTER YOUR EARLY INTEREST



