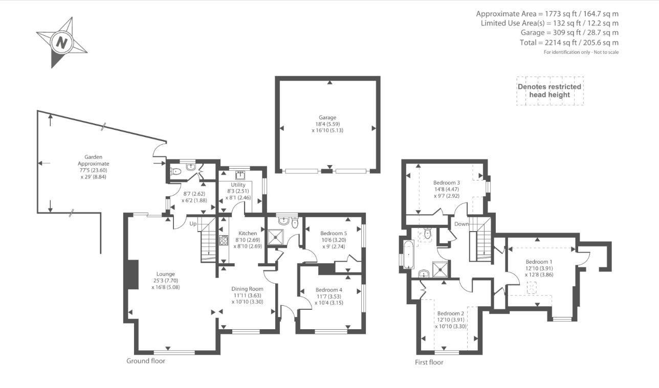
Great Rollright, Oxfordshire, OX7 5RR
- Detached House
- 5
- 2
- 2
Description:
A beautifully presented five bedroom detached property, offering an impressive open-plan kitchen, dining and living area — perfect for modern family living. The property also features a private rear garden, a double garage, and ample off-road parking.
Entrance Hall: Tiled floor, cloaks cupboard, door to
Bedroom/Reception Room: Dual aspect double glazed windows, engineered wood parquet flooring.
Bedroom/Reception Room: Double glazed window to side aspect, storage cupboard.
Ground Floor Sower Room: Double glazed window to rear aspect, low level WC, hand wash basin, walk-in shower.
Open-Plan Kitchen, Dining and Lounge Area: Feature open fireplace, double glazed window to front aspect, engineered oak parquet flooring, stairs leading to first floor, double glazing patio door to rear.
Kitchen/Utility Space: Built-in wall and base level units, oak worktops, stoves double oven with extractor hood above, integral fridge/freezer, dishwasher, Belfast sink, double glazed windows to rear and side aspect. Cupboard space, plumbing for washing machine, door leading to rear garden, door to
Cloakroom: Window to rear aspect, low level WC, hand wash basin, cupboard housing boiler.
Landing: Airing cupboard.
Bedroom One: Velux window, window to front aspect.
Bedroom Two: Window to front aspect, built-in wardrobe.
Bedroom Three: Window to side aspect, airing cupboard.
Bathroom: Velux window, window to side aspect, panelled bath, low level WC, hand wash basin, walk-in shower cubicle, wall mounted triton shower.
Front Garden: Predominantly laid to shingle providing off street parking for three vehicles. There is a double garage with electric doors. A pathway provides pedestrian access to the rear garden.
Rear Garden: Fully enclosed by wood panelled fencing and laid to lawn.

















